J. Basanavičiaus g. 36, 57288 Kėdainiai
Pradžia
Pradžia
Teisinė informacija
Teisinė informacija
Veiklos sritys
Veiklos sritys
E. demokratija
E. demokratija
Aktualijos
Aktualijos
Statinių projektiniai pasiūlymai
Statinių projektiniai pasiūlymai
Kokybės vadybos sistemos standartas ISO 9001:2015
Kokybės vadybos sistemos standartas ISO 9001:2015

Teritorijų planavimo dokumentai

 

BIRUTĖS GATVĖS KĖDAINIŲ MIESTO SEN., DAUKŠIŲ K. IR PASMILGIO K., SPECIALUSIS PLANAS

Aiškinamasis raštas

Pagrindinis brėžinys

Patikrinimo aktas

Klausimynas

Tvirtinimo dokumentas – 2025-03-28 Tarybos sprendimas Nr. TS-68

 

 

KĖDAINIŲ RAJONO VANDENS TIEKIMO IR NUOTEKŲ TVARKYMO INFRASTRUKTŪROS PLĖTROS SPECIALUSIS PLANAS 

Patikrinimo aktas

Aiškinamasis raštas

Pagrindinis brėžinys

Kėdainių aglomeracija

Detalizuojamų gyvenviečių brėžinys

Tvirtinimo dokumentas – 2024-12-20 Tarybos sprendimas Nr. TS-410

Vandens tiekimo ir nuotekų tvarkymo tinklų planavimas seniūnijose:

Dotnuvos sen.

Gudžiūnų sen.

Josvainių sen.

Kėdainių miesto sen.

Krakių sen.

Pelėdnagių sen.

Pernaravos sen.

Surviliškio sen.

Šėtos sen.

Truskavos sen.

Vilainių sen.

 

 

 

 

KĖDAINIŲ RAJONO SAVIVALDYBĖS BENDRASIS PLANAS 

-Aiškinamasis raštas

-Koregavimo aiškinamasis raštas

-Funkcinių prioritetų brėžinys 

-Susisiekimo ir infrastruktūros brėžinys

-Nekilnojamojo kultūros paveldo apsaugos ir naudojimo brėžinys

-Gamtinio kraštovaizdžio, biologinės įvairovės ir rekreacijos brėžinys

 

SPRENDIMAS ,,Dėl Kėdainių rajono savivaldybės teritorijos bendrojo plano keitimo tvirtinimo" (2021 m. gruodžio 17 d. Nr. TS-322) 

SPRENDIMAS ,,Dėl Kėdainių rajono savivaldybės teritorijos bendrojo plano koregavimo tvirtinimo" (2022 m. spalio 28 d. Nr. TS-272) 

 

 

KĖDAINIŲ MIESTO BENDRASIS PLANAS

- Aiškinamasis raštas

- Koregavimo aiškinamasis raštas

- Pagrindinis brėžinys

- Susisiekimo sistemos brėžinys

- Inžinerinės infrastruktūros brėžinys

- Želdynų sistemos brėžinys

- Gamtinio karkaso brėžinys

 

SPRENDIMAS ,,Dėl Kėdainių miesto bendrojo plano keitimo tvirtinimo" (2021 m. sausio 29 d. Nr. TS-20) 

SPRENDIMAS ,,Dėl Kėdainių miesto bendrojo plano koregavimo tvirtinimo" (2022 m. gruodžio 16 d. Nr. TS-349) 

 

 

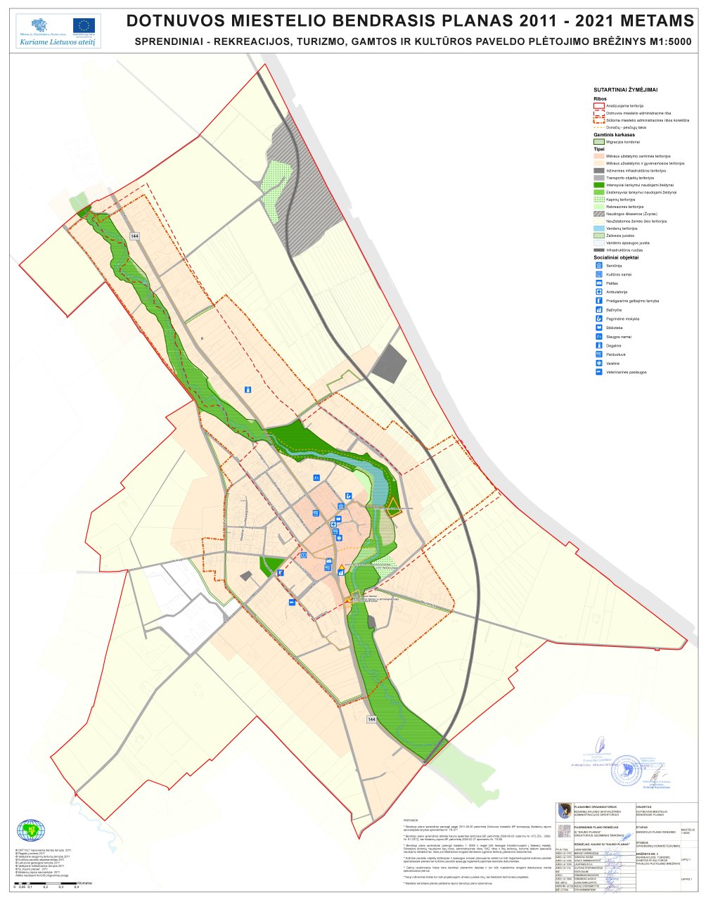
DOTNUVOS MIESTELIO BENDRASIS PLANAS 

- Aiškinamasis raštas

- Žemės naudojimas ir apsaugos reglamentai

- Inžinerinė infrastruktūra ir susisiekimo komunikacijos

- Rekreacijos, turizmo, gamtos ir kultūros paveldo plėtojimas

SPRENDIMAS ,,Dėl Dotnuvos miestelio bendrojo plano tvirtinimo" (2012 m. gegužės 25 d. Nr. TS-191) 

 

JOSVAINIŲ MIESTELIO BENDRASIS PLANAS 

- Aiškinamasis raštas

- Žemės naudojimas ir apsaugos reglamentai

- Inžinerinė infrastruktūra ir susisiekimo komunikacijos

- Rekreacijos, turizmo, gamtos ir kultūros paveldo plėtojimas

SPRENDIMAS ,,Dėl Josvainių miestelio bendrojo plano tvirtinimo" (2012 m. gegužės 25 d. Nr. TS-190) 

 

KRAKIŲ MIESTELIO BENDRASIS PLANAS 

- Aiškinamasis raštas

- Brėžiniai

SPRENDIMAS ,,Dėl Krakių miestelio bendrojo plano tvirtinimo" (2013 m. liepos 5 d. Nr. TS-226) 

 

ŠĖTOS MIESTELIO BENDRASIS PLANAS 

- Aiškinamasis raštas ir brėžiniai

SPRENDIMAS ,,Dėl Šėtos miestelio bendrojo plano tvirtinimo" (2013 m. liepos 5 d. Nr. TS-227) 

 

VILAINIŲ KAIMO TERITORIJOS DETALUSIS PLANAS 

Nuoroda į dokumentą TPDR

 

LABŪNAVOS KAIMO DETALUSIS PLANAS 

Nuoroda į dokumentą TPDR

 

PAOBELIO KAIMO DETALUSIS PLANAS 

Nuoroda į dokumentą TPDR

 

PELĖDNAGIŲ KAIMO DETALUSIS PLANAS 

Nuoroda į dokumentą TPDR

 

NOCIŪNŲ KAIMO DETALUSIS PLANAS 

Nuoroda į dokumentą TPDR

 

 

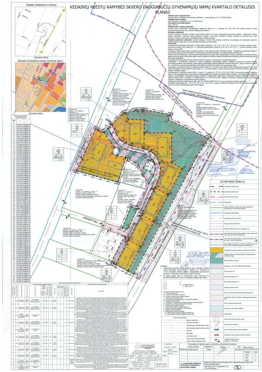
KĖDAINIŲ MIESTO DAUGIABUČIŲ GYVENAMŲJŲ NAMŲ KVARTALŲ DETALIEJI PLANAI

- Žemaitės g. kvartalo detaliojo plano brėžinys

- Smilgos g. kvartalo detaliojo plano brėžinys

- Ramybės skv. kvartalo detaliojo plano brėžinys

- Šėtos g. kvartalo detaliojo plano brėžinys

- Liepų al. kvartalo detaliojo plano brėžinys

- J. Basanavičiaus - Kęstučio g. kvartalo detaliojo plano brėžinys

- Josvainių g. kvartalo detaliojo plano brėžinys

- Liaudies, Respublikos, Chemikų, A. Kanapinsko, Rasos g. kvartalo detaliojo plano brėžinys

- Gegučių, A. Kanapinsko, g. Rasos, Mindaugo, Pavasario g. kvartalo detaliojo plano brėžinys

 


KĖDAINIŲ RAJONO TERITORIJOS BENDRASIS PLANAS 2007 - 2017 METAMS

- Žemės naudojimas ir apsaugos reglamentai

- Inžinerinė infrastruktūra ir susisiekimas

- Rekreacija ir turizmas

- Kultūros paveldas

- Aiškinamasis raštas